Nabízíme k prodeji nadstandardní byt 3+1, 96,1m2, terasy 19,6m2 a 8,7m2, v ulici Václava Černého, Benátky nad Jizerou. Byt se nachází v moderní novostavbě domu z roku 2020. Byt nabízí příjemné a klidné bydlení s volným výhledem do okolí.
Vybavení, které je součástí bytu: designová kuchyňská linka na míru, spotřebiče Whirlpool (indukční varná deska, trouba, myčka, lednice, mikrovlnná trouba, digestoř) šatní skříň, postel, sedačka, jídelní stůl, židle, vybavení dětského pokoje, koupelnová skříňka, pračka se sušičkou AEG, zahradní nábytek, světla, záclony, závěsy, komoda atd.
Standard bytu: francouzská okna, betonové stěrky, sádrokartonové podhledy s led osvětlením, velkoformátová dlažba a obklady, klimatizace LG, podlahové vytápění Rehau v celém bytě, elektrické předokenní rolety, závěsné WC, prostorový termostat v každé místnosti, designový topný žebřík v koupelně, vstupní bezpečnostní dveře a vinylové podlahy.
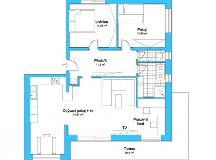
Dispozice bytu: prostorná vstupní hala, koupelna se sprchovým koutem, samostatné WC, obývací pokoj + pracovna, kuchyň a dvě samostatné ložnice.
Kupní cena zahrnuje venkovní vyhrazené parkovací stání a sklepní kóji o výměře 11,7m2, která se nachází v přízemí domu. V domě je k dispozici kočárkárna.
Veškerá občanská vybavenost se nachází v blízkém okolí ( školky, tři základní školy, poliklinika, supermarkety, restaurace, sportoviště, obchody atd.
Dopravní dostupnost na metro B Černý Most je 25min po R10, Mladá Boleslav 10min. jízdy autem nebo PID.
Možnost financování hypotečním úvěrem.
- Bezbariérový byt:ano
- Dispozice bytu:3+1
- Podlaží v domě:3
- Počet podlaží v domě:3
- Celková podlahová plocha:96 m2
- Druh objektu:cihlová
- Stav objektu:novostavba
- Vlastnictví:osobní
- Sklep:11 m2
- Doprava:vlak; dálnice; silnice; autobus
- Telekomunikace:Internet
- Energetická náročnost budovy:B - Velmi úsporná
- Energetický ukazatel
podle vyhlášky:č. 264/2020 Sb. - Plocha terasy:28 m2
- Počet parkovacích míst:1
