Nabízíme k prodeji rozestavěný rodinný dům 5+kk s obytnou plochou 152 m², zastavěnou plochou 99 m² a celkovou výměrou pozemku 359 m². Nemovitost se nachází v klidné lokalitě v ulici Pod Bažantnicí v obci Nový Vestec. Dům je situován na okraji lesoparku u soutoku Jizery a Labe, v malebném a klidném prostředí ideálním pro rodinné bydlení, procházky i odpočinek v přírodě. Současně nabízí výbornou dopravní dostupnost – do Prahy, Brandýsa nad Labem i Staré Boleslavi se pohodlně dostanete během několika minut, k metru Černý Most zhruba za 17 minut jízdy.
Pozemek je kompletně zasíťovaný – k dispozici je napojení na elektřinu, veřejný vodovod, kanalizaci i plynovod. Je oplocený a přístupný z veřejné komunikace.
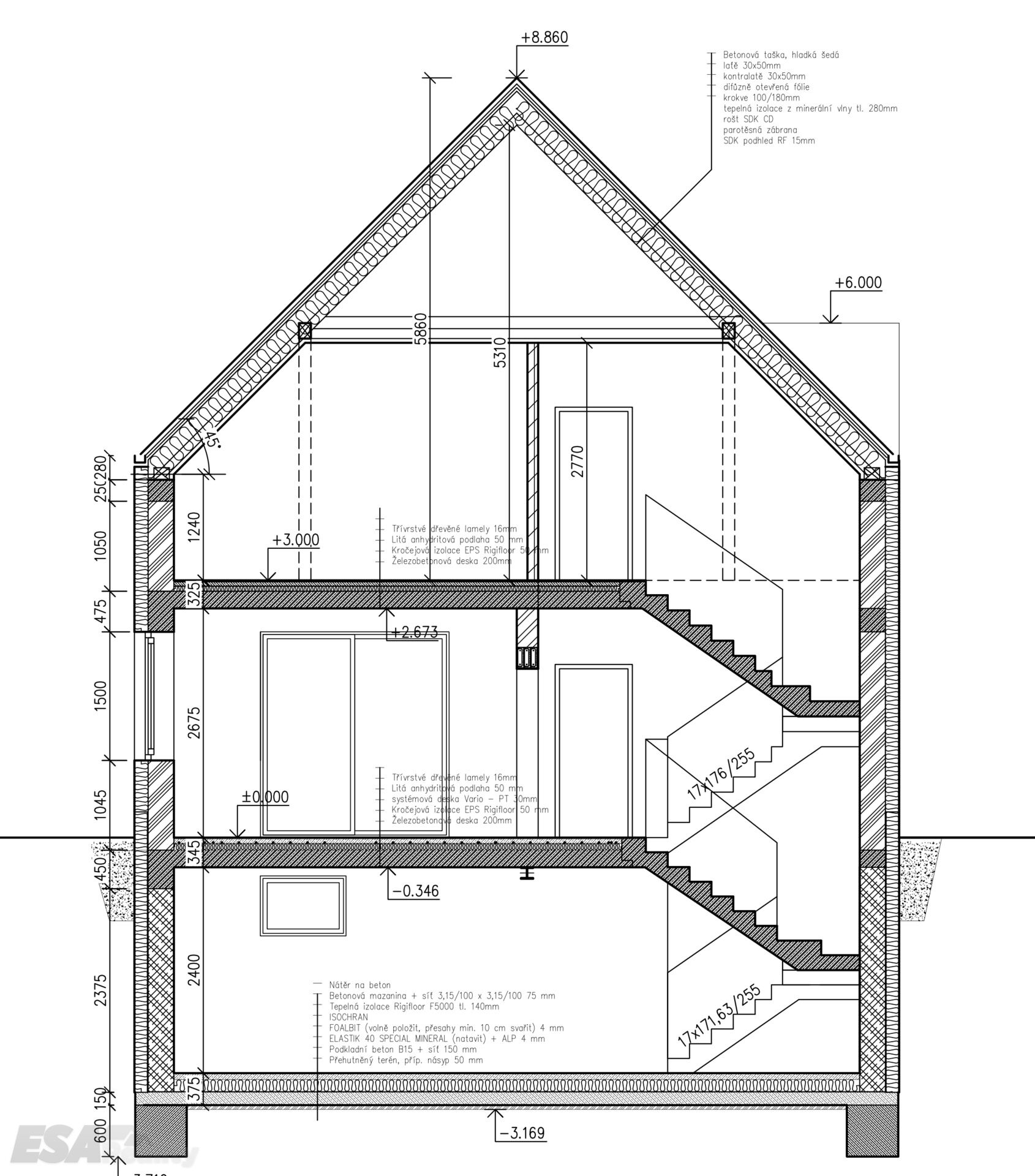
Dům má platné stavební povolení a kompletní projektovou dokumentaci. Je plně podsklepený, obvodové zdivo je z tvárnic Ytong o tloušťce 30 cm a počítá se se zateplením. Střešní krytinu tvoří pálené betonové tašky KMB Beta Elegant (v ceně stavby, dosud nepoložené, realizace proběhne v následujících týdnech), střešní okna jsou zn. Roto.
V současné době probíhají terénní úpravy pozemku. Dům je připraven k dokončení podle představ nového majitele, přičemž je možné zajistit dokončení stavby prověřenou stavební firmou.
Dispozice domu:
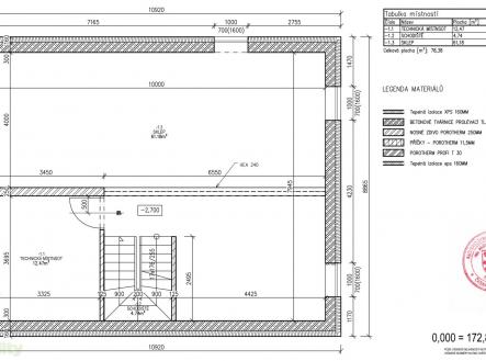
1.podzemní podlaží: sklep 61m², technická místnost 12,5m².
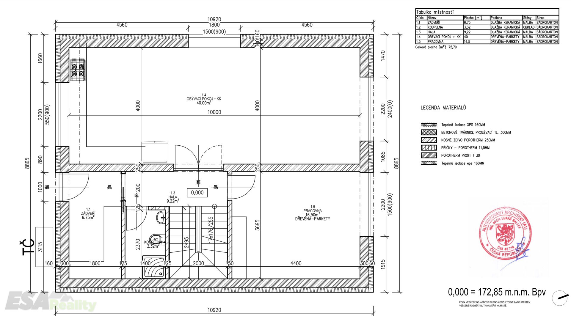
1.podlaží – zádveří 6,8m², vstupní chodba 9,2m², koupelna se sprchovým koutem a WC 3,3m², ložnice 16,5m², obývací pokoj se vstupem do zahrady a kuchyňský kout 40m².
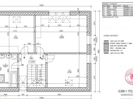
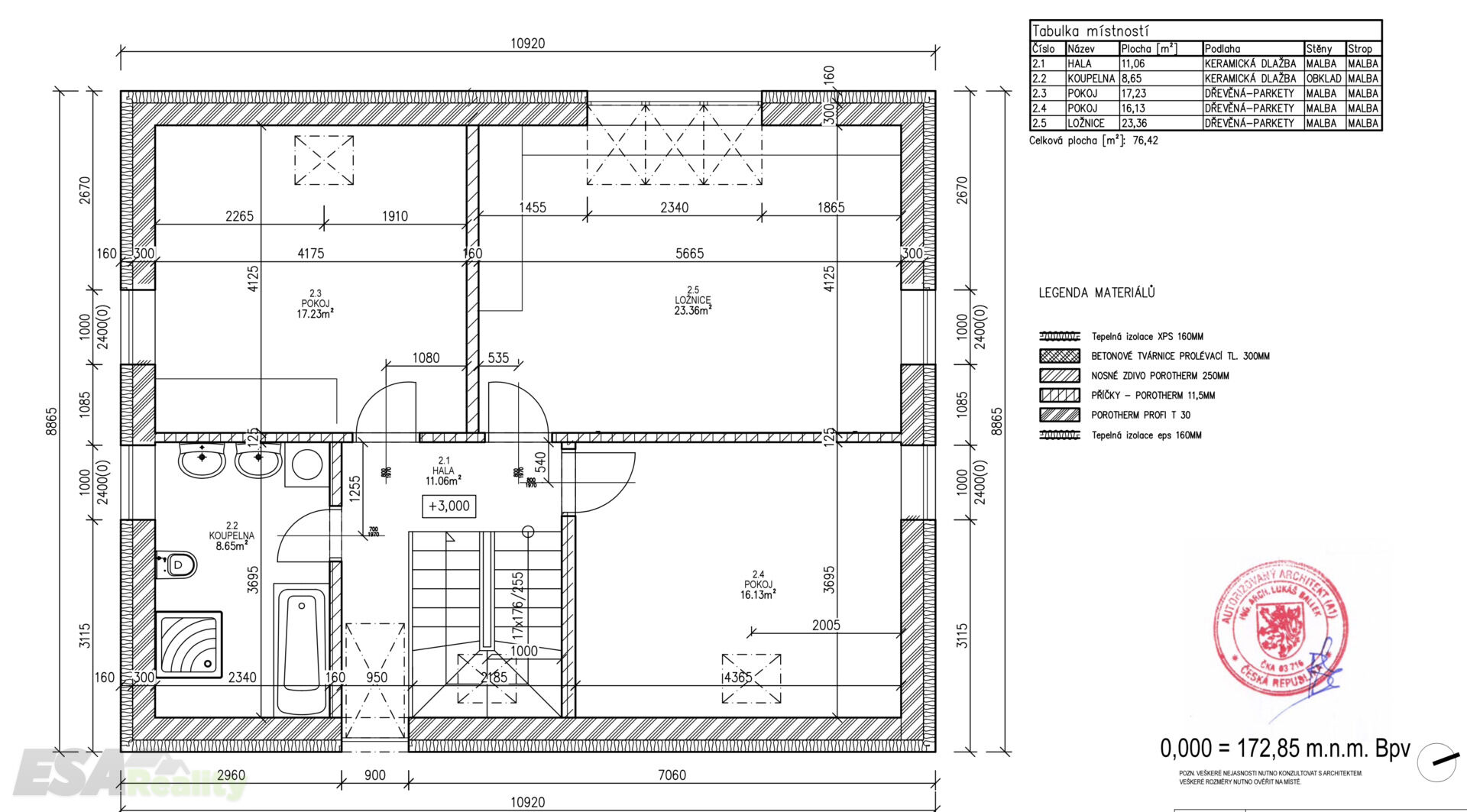
2.podlaží – chodba 11m², tři ložnice 23,3m², 17,2m² 16,1m², koupelna s vanou a WC 8,6m².
Obec leží v malebné krajině Polabí, obklopená přírodou a množstvím rekreačních možností. V blízkosti se nachází koupací jezero u Káraného, slatinné lázně Toušeň, lesopark Houšťka se sportovišti či přírodní památka Černý orel – pozůstatek někdejších královských lesů.
Občanská vybavenost obce zajišťuje veškeré základní potřeby pro pohodlné bydlení. V docházkové vzdálenosti je obchod s potravinami a autobusová zastávka. Kompletní infrastrukturu – školy, zdravotní péči i sportovní zařízení – nabízí nedaleký Brandýs nad Labem – Stará Boleslav.
Možnost financování hypotečním úvěrem.
- Poloha objektu:samostatný
- Druh objektu:cihlová
- Stav objektu:novostavba
- Počet podlaží v objektu:2
- Typ domu:patrový
- Zastavěná plocha:99 m2
- Užitná plocha:230 m2
- Plocha parcely:359 m2
- Plocha zahrady:260 m2
- Plocha sklepu:73 m2
- Umístění objektu:klidná část obce
- Doprava:dálnice; silnice; MHD
- Elektřina:Elektro - 400 V
- Voda:Rozvod studené a teplé vody
- Plyn:Individuální
- Odpad:Kanalizace
- Energetická náročnost budovy:G - Mimořádně nehospodárná
- Energetický ukazatel
podle vyhlášky:č. 264/2020 Sb. - Plocha zahrady:260 m2
- Sklep:73 m2
